記事番号: 1-9974
公開日 2022年04月01日
更新日 2025年03月21日
管理者連絡先
・管理者 (株)西倉工務店
・連絡先 電話 0194-22-2407
FAX 0194-22-2494
外観写真(R4.6建築中の様子)

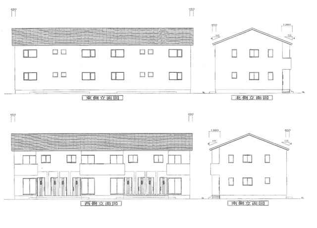
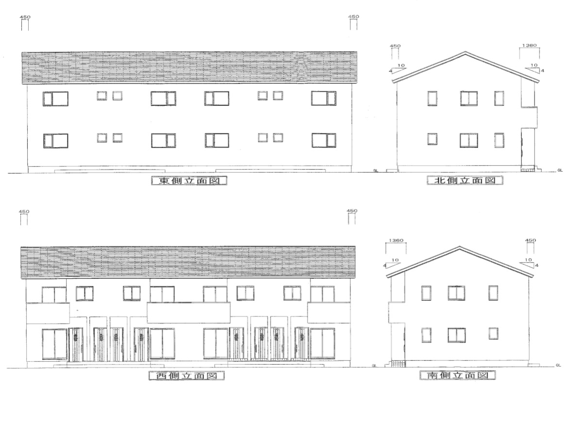
間取り図・立面図


設備
水洗トイレ、冷暖房、ガス給湯器、IHクッキングヒーター
その他
・建築年度 R4(戸数 4戸)
・管理費 500円、共益費 500円。
読み上げプレーヤーを停止して非表示にする場合は、ページの一番上にある閲覧支援ツールの「よみあげ中」を押してください。
記事番号: 1-9974
公開日 2022年04月01日
更新日 2025年03月21日
・管理者 (株)西倉工務店
・連絡先 電話 0194-22-2407
FAX 0194-22-2494



水洗トイレ、冷暖房、ガス給湯器、IHクッキングヒーター
・建築年度 R4(戸数 4戸)
・管理費 500円、共益費 500円。